Bản vẽ móng cọc nhà dân, nhà phố, nhà tầng, nhà chữ L

Gia đình nhà mình đăng băn khoan không biết xây dựng thi công phần móng thì bản thiết kế về móng cọc bê tông nhà dân, nhà phố, nhà tầng, nhà chữ L hình thu như thế nào?

Nay công ty chúng tôi sẽ hướng dẫn cho quý khách hiểu thế nào về bản vẽ móng cọc bê tông cho công trình nhà mình. Hiện tại như nhà dân chia làm 2 loại nhà chữ L và nhà ống.

Đối với nhà chữ L hay còn gọi là nhà ba gia thì tim cọc thường hay rơi vào 12 đài mỗi đài thì 3 đến 4 tim cọc mỗi tim cọc sâu bao nhiêu thì tùy thuộc vào mức độ địa chất từng công trình.

Đối với nhà ống tùy độ dài của nhà mà ta có thể có bao nhiêu đài thông thường là từ 8 - 14 đài mỗi đài dao động từ 3 đến 4 tim cọc độ sâu từng tim cọc tùy từng mức độ của công trình mà ta cần ép.

Loại đất thì chia làm loại đất thổ cư và đất ruộng và đất ao: Loại đất thổ cư thường ép sâu ở mức 5 - 10 m còn loại đất ruộng và ao thì có khả năng sâu hơn từ 10 - 30m cho mỗi tim cọc. Để cho công trình chắc chắn thì mỗi gia đình nên ép đủ độ chỗi để cho công trình luôn luôn ổn định và chắc chắn ngôi nhà của mình.

Trong mỗi đài có 3-4 tim cọc mỗi tim các nhau trong đài khoảng 60 phân, đài cách tường từ 30 đến 50 phân.

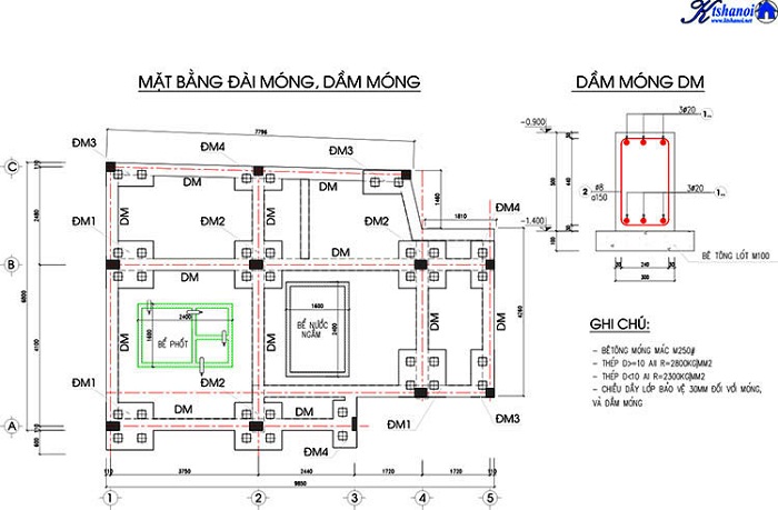
Dưới đây là bản vẽ thông số và diện tích các bác có thể xem bên dưới bản vẽ

Bản vẽ móng cọc nhà dân, nhà phố, nhà tầng, nhà chữ L

Bản vẽ móng cọc nhà dân, nhà phố, nhà tầng, nhà chữ L

Xem bảng báo giá ép cọc bê tông nhà dân tại đây: https://epcocbetonghanoi.net.vn/bao-gia-ep-coc-be-tong/gia-ep-coc-be-tong-200x200-tai-ha-noi-1000101

 

CÔNG TY CỔ PHẦN SẢN XUẤT VÀ THI CÔNG ÉP CỌC BÊ TÔNG THĂNG LONG:

MST: 0109897437

Hotline: 097.193.8146

Email: baogiaepcocbetong@gmail.com

Website: https://epcocbetonghanoi.net.vn/

ĐỊA CHỈ NHÀ MÁY SẢN XUẤT CỌC BÊ TÔNG THĂNG LONG:

Nhà máy 1 : Cống Chèm - Đê Liên Mạc - Bắc Từ Liêm - Hà Nội
Nhà máy 2 : Thiên Đường Bảo Sơn - Đại Lộ Thăng Long - Hà Nội
Nhà máy 3 : Ngã Ba - Hòa Lạc - Thạch Thất- Hà Nội
Nhà máy 4 : Dốc bồ Đề - Long Biên - Hà Nội
Nhà máy 5 : Đê Nguyễn Khoái- Hai Bà Trưng - Hà Nội
Nhà máy 6 : Thạch Thất - Đại Lộ Thăng Long - Hà Nội
Nhà máy 7 : Quốc Lộ 32- Đại Học Công Nghiệp- Hà Nội
Nhà máy 8 : Quỳnh Đô - Thanh Trì - Hà Nội
Nhà máy 9 : Đê Hồng Vân - Thường Tín - Hà Nội
Nhà máy 10: Hải Bối - Đông Anh - Hà Nội
Nhà máy 11: Văn Điện - Thanh Trì - Hà Nội
Nhà máy 12: Đê sông Hồng - Hai bà Trưng - Mê Linh - Hà Nội
Nhà máy 13: Cở sở TPHCM: Số 46 Đỗ Quang, Phường Thảo Điền, Quận 2, TP Hồ Chí Minh